Novigrad
Mixed-Use Building
PROJECT TYPE
Residential & Commercial
ROLE
Lead Architect
Concept Design through Construction Documentation · Site Supervision · Interior Design (Restaurant)
LOCATION
Novigrad, Croatia
YEAR
2021 – 2025 · Built
GROSS AREA
1.644 m²
DESCRIPTION
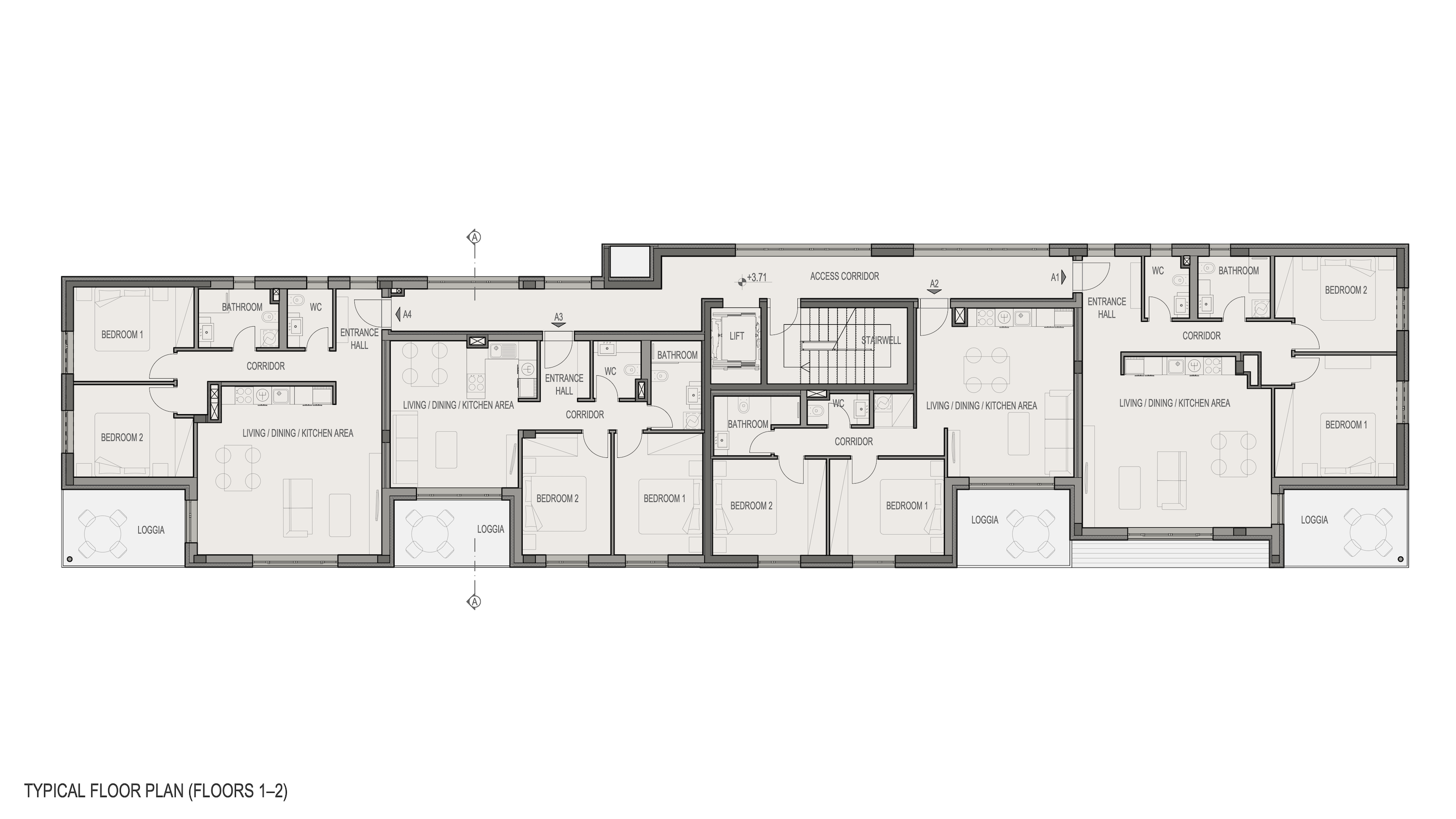
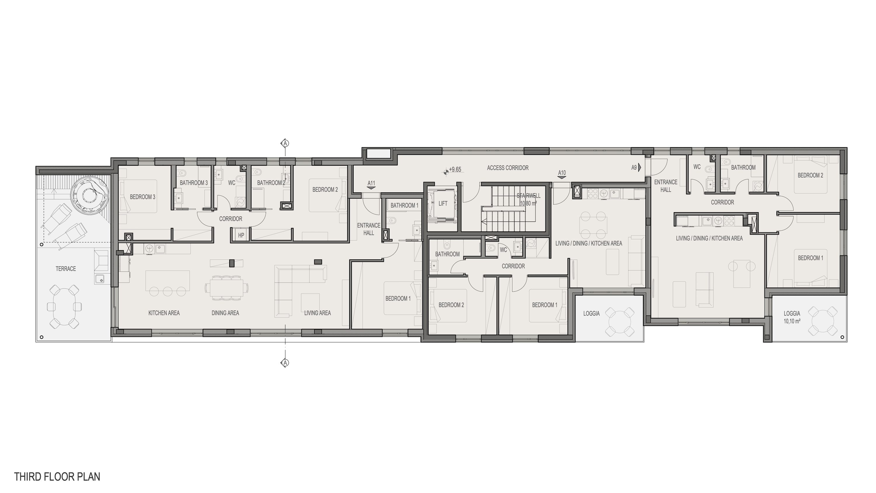
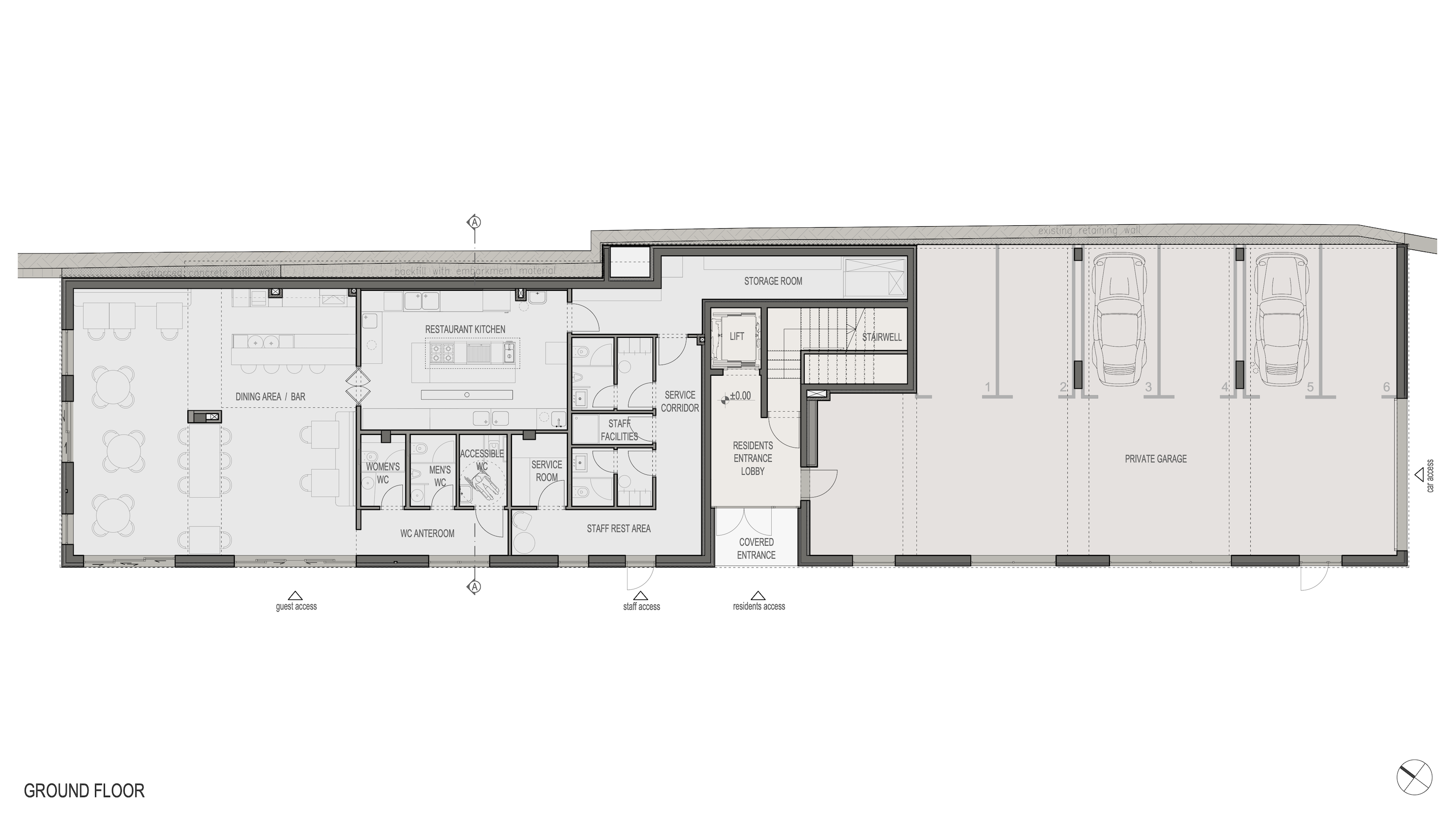
The building is a mixed-use residential and commercial development organized over four levels with a flat roof. The ground floor accommodates a restaurant with large glazed openings oriented toward the sea, a private garage, and the main entrance areas providing access to the upper floors.
The residential levels above contain eleven apartments arranged along a central corridor: four units on the first and second floors and three on the third level, including a penthouse apartment with a covered panoramic terrace.
The almost rectangular volume is articulated through recessed loggias and frames that define the upper levels. A projecting volume at the top floor emphasizes the main apartment and its panoramic terrace. The ground floor façade is clad in natural stone, while the upper levels are characterized by a composition of contrasting colors, frames, volumes, and loggias.
















